
浙江省海门市科迪仪器KD-1P-80小型恒温恒湿试验箱
?浙江省海门市科迪仪器KD-1P-80小型恒温恒湿试验箱
浙江可程式高低温交变湿热试验箱、可编程恒温恒湿箱、科迪仪器KD-1P-80小型恒温恒湿试验箱现货
KD-1P-80恒温恒湿箱:内箱尺寸为40*50*40cm;温度范围:-40℃至150℃
规格、温度范围等均可依客户要求定制。
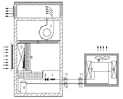
产品介绍:
恒温恒湿老化试验箱该设备内可保持用户设定的温度、湿度值,这些温湿度值也可以通过程序设置交替变化。它一般用于测试和确定电工、电子及其他产品及材料的耐热、耐寒、耐干、耐湿的性能。
控制部分采用进口高稳定度控制器,高稳定度之白金测温抵抗体,LCD中英文触控式屏幕,120组1200段编程,999次循环设定。并附多组PID控制功能,配合合乎温/湿度测试标准之风循环系统,可模拟高温高湿/高温低湿/低温高湿/低温低湿等不同环境的测试条件,更搭配容易操作及学习高准确性之编程系统,提供测试性能。
符合标准:GB/T5170.5-2008、GB/T-2006、GB/T2423.1-2008试验A、GB/T2423.2-2008试验B、GB/T2423.3-2006试验Ca、GB/T2423.4-2008试验。
?
规格参数:
KD-1P系列高低温交变湿热试验箱规格:KD-1P-80高低温交变湿热试验箱:W400×H500×D400(mm)KD-1P-150高低温交变湿热试验箱:W500×H600×D500(mm)KD-1P-225高低温交变湿热试验箱:W500×H750×D600(mm)KD-1P-408高低温交变湿热试验箱:W600×H850×D800(mm)KD-1P-800高低温交变湿热试验箱:W1000×H1000×D800(mm)
技术参数:温度范围:-20℃~150℃升温速度:由-20℃升至100℃约40分钟非线性空载降温速度:由+20℃降至-20℃约40分钟非线性空载温度极限:温度+150℃,温度-20℃温度分布均度:±2.0℃湿度分布均度:±3%温湿度控制器:韩国TEMI原装控制器冷冻系统:单段自动负载容量调整技术,压缩机采用原装法国""牌全封闭式压缩机湿度范围:20%~98%RH(可根据客户要求定做:低湿型可达到5%RH)温度稳定度:±0.3℃湿度稳定度:±2.5%RH内箱材质:SUS304#不锈钢(或一级镜面光板)外箱材质:高级耐磨烤漆涂装(或SUS-304#不锈钢)保温材质:岩棉及硬质Polurethane发泡加湿系统:不锈钢加湿筒设计,附加缺水断电及超湿保护加热器:采用中国台湾进口不锈钢鳍片式散热管形加热管供水系统:内置纯水生成装置,不经人工加水,可直接自来水,并附缺水警示装置迫紧:硅胶发泡迫紧1条置物架:箱体内设有高度可调之不锈钢置物架2个脚架:机身底部装设聚氨脂活动万向车轮水箱:内藏不锈钢水箱15升1只箱门:采用嵌入式无反作用平面把手,内有两层真空玻璃加大窗口保护装置:无熔丝开关,压缩机过载保护、冷媒高压保护,超温、超湿断电、缺水保护开关、温度极限保护及故障警报装置标准配件:自动除雾玻璃视窗,上下可调隔层两片,测试孔、操作室内灯,移动轮选购配置:记录仪/USB接口电源:AC220V/380V,50/60Hz?
恒温恒湿老化试验箱温湿度参考表(深蓝色为标准湿度,浅蓝色为非标湿度要求,定购前请说明)
?
咨询热线
133-6050-3273
